Трамвай «ВариоЛФ»


Video



Трамвайный вагон с низким полом предназначен для эксплуатации на городских линиях.

Четырехосный односторонний моторный трамвайный вагон с низким полом типа «ВариоЛФ»

Эксплуатация может быть обеспечена одним или двумя вагонами, или составами, состоящими из одного механического вагона и одного прицепного вагона, или же двух механических вагонов и одного прицепного вагона.

Пере­движение

Для передвижения транспортного средства используются две приводные полностью вращающиеся тяговые вагонные тележки типа «КОМФОРТ», с первичным и вторичным подрессориванием. Каждая вагонная тележка оснащена двумя асинхронными двигателями мощностью 180 кВт. На оси двигателей размещен электромеханический дисковый тормоз.

Кузов

Грубая конструкция кузова типа VarCB3LF представляет собой сварную, легкую стальную конструкцию с нержавеющей обработкой, с торцами из слоистого пластика, которые прикреплены к конструкции эластичной клеящей мастикой.

Трамвайный кузов

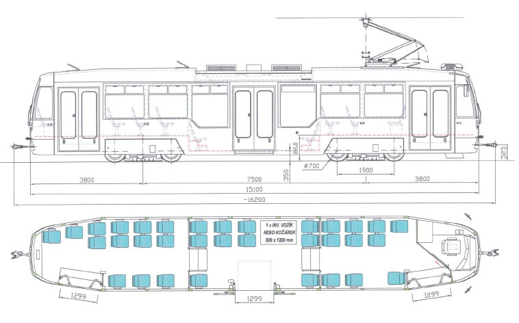
  • При ширине транспортного кузова 2480 мм в соответствии с действующей нормой ЧГС EN максимализирует возможную отдаленность поворотных цапф на 7500 мм
  • Высота пола от Т.К. – 860 мм/350 мм
  • Позволяет монтаж электрического привода в конструкцию крыши
  • При его конструкции и выпуске используются самые современные технологии – закрытые профили, клееные торцы, охрана от коррозии
  • Зарег­истрирован как полезный образец в Управлении промышленной собственностью Чешской Республики под номером 1432 от 10.05.2004 года­.

Электрическое оснащение

Есть использован тяговый привод с асинхронной передачей мощности.

Управление приводом осуществляется при помощи микропроцессора на базе IGBT техники с рекуперацией. Один инвертор предназначен для одной вагонной тележки. Оснащение размещено в крыше вагона.

Технические данные транспортного средства

Ширина колеи (мм)

1435

Ширина трамвая (мм) 2480

Масса пустого трамвая

21 200+-5 %

Количество мест для сидения

33

Количество мест для стоящих пассажиров (при 4л/м2)

58

Количество мест для инвалидных колясок / детских колясок

1/1

Максимальная заполняемость (8 чел./кв.м)

149

Инсталированная мощность (кВ)

360

Максимальная скорость (км/час.)

65

Макс. ускорение пустого вагона (м / сек.)

1,8

Минимальный радиус поворота

R 18m

Доля сниженной платформы трамвая

36%

Количество тяговых вагонных тележек

2

Сцепной вес 100%

Продукты

Имеется сертификат в соответствии с международными стандартами качества, разработана система документации и менеджмента качества согласно ЧГС EN ISO 9001:2016.

Certification