Tramvaj VarioLF3, VarioLF3/2


Video



Tramvaj je určena pro provoz na městských a rychlodrážních tratích.

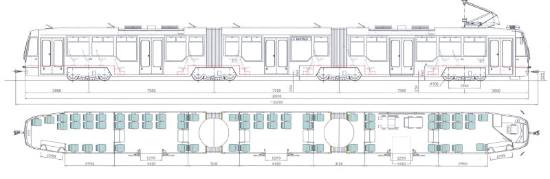
Kolejové vozidlo je konstruováno pro jednosměrný (VarioLF3) nebo obousměrný provoz (VarioLF3/2). Vozidlo se skládá se ze tří článků nesených čtyřmi podvozky. Spojení článků je kloubové, klouby jsou umístěny nad středními podvozky. Výška podlahy je kombinovaná 860/350mm. Všechny vstupy mezi podvozky vozidla mají sníženou podlahu v úrovni 350mm nad temenem kolejnice.

Pojezd

Pro pojezd vozu jsou použity čtyři hnací plně otočné trakční podvozky s dvojím vypružením typu KOMFORT. Základem podvozku je dělený kloubový rám. Každá náprava je poháněna vlastním podélně uloženým asynchronním trakčním motorem. Točivý moment je přenášen kloubovým hřídelem a nápravovou převodovkou s kuželovým hypoidním soukolím.

Tramvajová skříň

Konstrukce skříně je ocelová svařovaná z uzavřených i otevřených profilů. Obložení hrubé stavby je provedeno z ocelových plechů, které jsou ke skeletu uchyceny tzv. technologií lepením. Jedná se o dělenou skříň při použití tzv. lehké stavby. Čela jsou laminátová k ocelovému skeletu přichycena pružným lepícím tmelem. Spojení jednotlivých článků klouby umožňuje průchod po celé délce vozidla. Patery dvoukřídlé dveře světlé šířky 1300mm umožňují snadný nástup a výstup cestujících a urychlují jejich výměnu. Vnitřní vybavení a provedení tramvaje odpovídá požadavku na vysoký standard přepravy cestujících.

Elek­trická výzbroj

Je použita tranzistorová výzbroj s asynchronními motory o celkovém instalovaném trakčním výkonu 720kW. Jeden střídač je určen pro jeden podvozek. Pro řízení a diagnostiku elektrické výzbroje je použit mikroprocesorový distribuovaný řídící systém. Výzbroj je umístěna na střeše vozidla.

Technické parametry

Rozchod (mm) 1435
Šířka vozidla (mm) 2480
Hmotnost prázdné tramvaje (kg) 38 000+-5%
Počet míst k sezení 61
Počet míst k stání (při 4 os/m2) 168
Počet míst pro invalidní vozíky/kočárky 2/2
Max. obsaditelnost (při 8os./m2) 329
In­stalovaný výkon (kW) 720
Maximální rychlost (km/hod.) 65
Max. zrychlení prázdného vozu (m/s2) 1,8
Min. poloměr projížděného oblouku R 18m
Podíl nízké podlahy tramvaje 50 %
Počet trakčních podvozků 4
Adhezní hmotnost 100 %

Produkty

Jsme certifikováni podle mezinárodních norem pro jakost.

Máme vybudovaný, dokumentovaný a zavedený systém managementu jakosti podle ČSN EN ISO 9001:2016.

Certifikát