Tramcar VarioLF


Video



The single direction four-axles low-floor motor tramcar type VarioLF

The low floor tramcar serves for urban public transport. The operation can be provided both one or two tramcars and one or two tramcars and one tramtrailer coupled into a train.

Driving

The vehicle has two fully driven traktion bogies with primary and secondary suspension. Each bogie is equipped by two new asynchro-nous motors. There is an electromechanical disc brake on the motor shaft.

Car Body

The construction of the VarCB3LF type car body has light steel framework with an increased anti-corrosive protection and laminate forefronts, which are connected to the car body by a bonding cement.

Tram Body

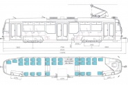
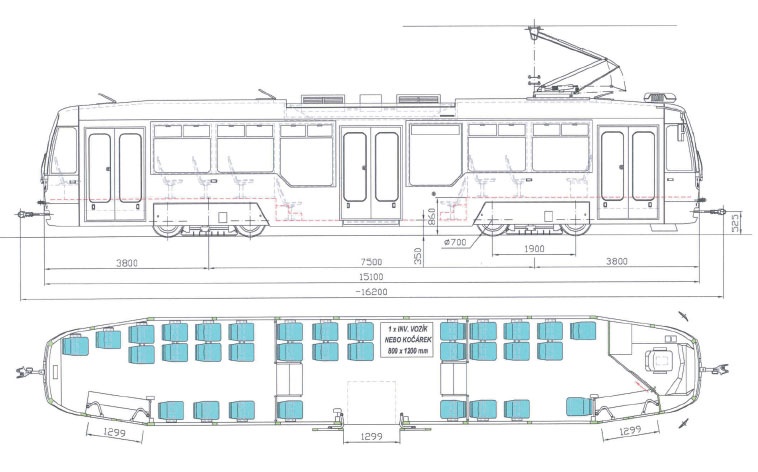
By the tramcar body´s width of 2 480 mm, which is in accordance with the ČSN EN norms, the distance of pivots ought to be extended to 7 500 mm. Floor height above the top of the rail 860 / 350 mm. The electric equipment is mounted inside containers on the roof of the vehicle. The vehicle design uses state-of-the-art engineering solutions closed prophiles, glued forefronts and anticorrosive protection. It is registred as utility model at the Industrial Property Office of the Czech Republic under No. 1432 dated 10 May 2004.

Electrical Equipment

Tramcar is equipped with traction drive with AC power transmission.

Controlled by modern microprocessor-choppers with IGBT inverters and recuperation capability. One chopper is fitted for one bogie. Roof mounted containers house most of the traction equipments.

Vehicle technical data

Wheel gauge (mm) 1435
Car width (mm) 2480
Weight of an empty car (kg) 21 200+-5 %
Sitting occupancy 33
No. of standing passengers (4 persons/m2) 58
Wheelchair capacity / baby prams 1/1
max. occupancy (8 pers./m2) 149
Installed motor output (kW) 360
Maximum speed (km/hr) 65
Max. acceleration of empty vehicle (m/s2) 1,8
Min. curve radius R 18m
Low floor ratio 36 %
No. of traction bogies 2
Adhesion weight 100%

Products

It is certified subject to international quality standards and manages built-in, documented and implemented Quality Management System according to ČSN EN ISO 9001:2016 standard.

Certification